Pietra Calacatta

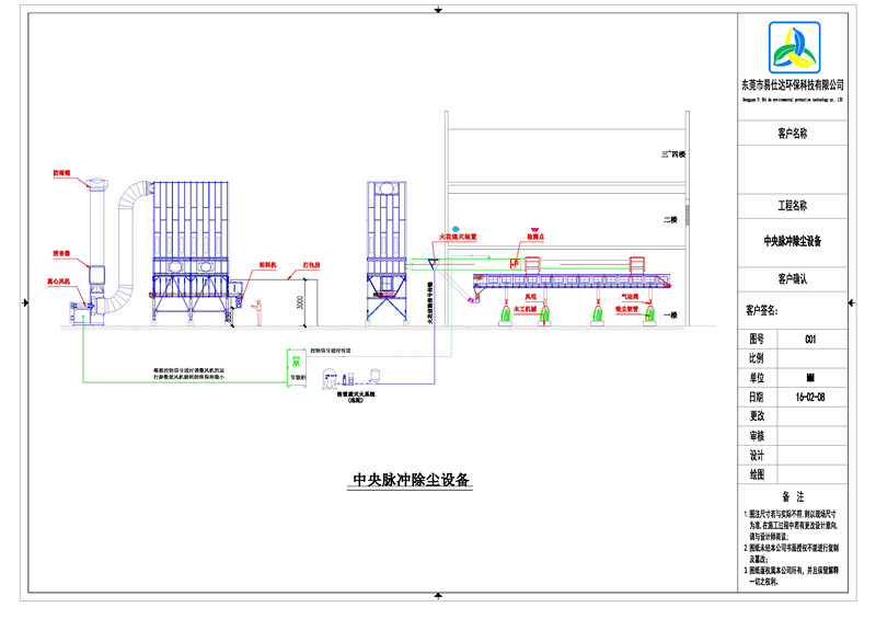
中央脉冲除尘器结构图

中央脉冲除尘器结构图 中央脉冲袋式除尘器对净化含微米或亚微米数量级的粉尘粒子的气效率较高一般可达99%以上;

详细介绍

1)、工艺流程选择:
在生产过程中污染物主要以木屑及细木粉为主,属于混合粉尘,具有粒径大小不一、易漂浮、易粘结、略亲水等特点。粉尘治理主要有干式除尘法和湿式除尘法。根据粉尘性质分析,该工艺宜采用干式除尘法。其中干式除尘法又分为旋风除尘法、布袋除尘法、脉冲除尘法和电除尘法。综合考虑得知,脉冲除尘法无论对于粉尘的大小、黏性和导电性都相当适合。且脉冲除尘器是目前广泛使用、业已成熟的粉尘处理系统,具有占地面积小、运行稳定、处理效果好、操作维护简单、运行费用低、控制自动化程度高、节能高效等特点,一次处理后不产生二次扬尘。为此我们推荐使用中央脉冲袋滤式除尘系统。

2)、工艺流程设计简图



3)、工艺流程说明
该项目规划方案采用抽风机配合中央脉冲式除尘器的处理方式,是我公司在吸收、消化国内外经验及技术的基础上设计而成,具有过滤效果佳、脉冲清灰彻底、系统性能稳定、造价低廉等优点,广泛用于木材加工、冶金、化工、音箱制造等工业含尘气体的分离处理。脉冲袋滤式除尘器是通过特殊的过滤材料,使含尘气体通过滤材来达到分离气体中固体粉尘的一种高效除尘设备。以其滤袋压力损失稳定,处理风量大,而且内部无运动部件,滤布寿命长等优点被用户广泛使用。
本方案中,各扬尘点分别布置管网,设置若干个吸尘风口,各风口加装滤网及开关阀,主管路采用法兰相连,方便拆装,含尘气体通过风口汇入管路,由离心风机负压作用,将其吸入袋式除尘器下储灰箱,再经高效专用过滤布袋,将粉尘拦截,达到气尘分离,将过滤后洁净空气排出。同时因过滤过程中部分粉尘粘结、堵塞滤袋、使除尘器内部阻力加大、风力衰减,此时就由预装的脉冲电磁阀,控制高压空气进行周期性反吹,将滤袋上的粉尘振落至箱底,达到实时清灰的目的,保证系统的正常运行。经过滤处理后的粉尘可以集中打包,也可以回收再利用。

 

4)、特点:
      (1)袋式除尘器对净化含微米或亚微米数量级的粉尘粒子的气效率较高,一般可达99%以上;
      (2)袋式除尘器可以捕集多种干性粉尘,特别是高比电阻粉尘,采用袋式除尘器净化要比用电除尘器的净化效率高很多;
      (3)含尘气体浓度在相当大的范围内变化对袋子式除尘器的除尘效率和阻力影响力大;
      (4)袋式除尘器可设计制造出适应不同气量的含尘气体的要求,除尘器的处理烟气量可从几m3/h到几百万m3/h;
      (5)采用IC控制系统,使设备全自动运行。
      (6)滤布材质:选配适当材质(有耐高温、耐酸碱、防静电、防水气、防油气等)。


5)、适用行业:
        PCB线路板业、木业、食品、饲料、皮革、化工、橡/塑胶、研磨、铸造、锅炉、窑业、沥表拌合、水泥、表面处理、电子等。

图片欣赏

Copyright © 2014-2016 东莞市易仕达环保科技有限公司 版权所有